Salisbury Hospital - Paediatrics Play Area

J & J Carter were tasked with providing a Tensile Fabric Shade Canopy for the paediatrics play area at Salisbury hospital in Wiltshire.

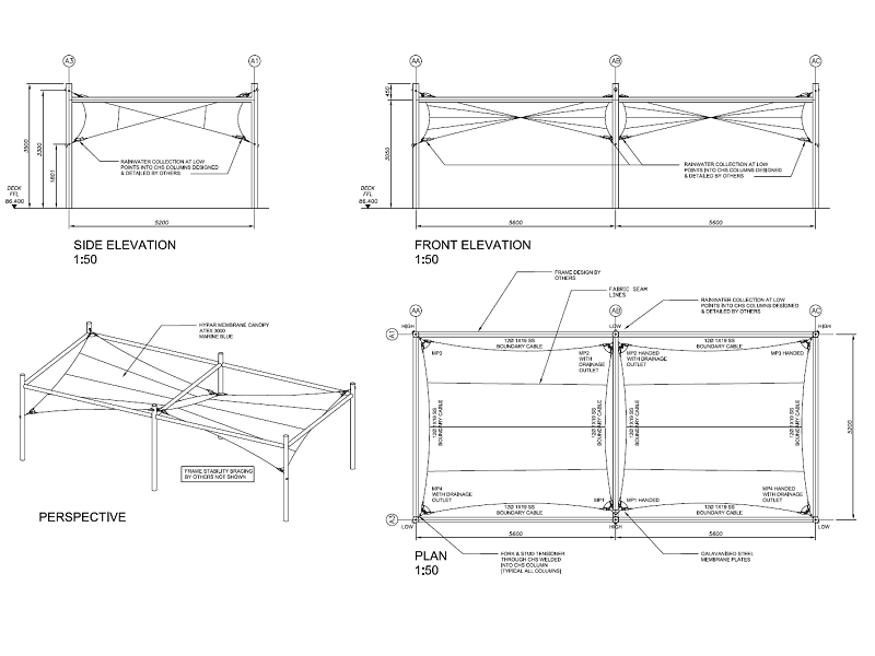
The 72m2 Tensile Fabric Canopy was installed over the play deck, featuring a non-combustible membrane with high translucency, as per the client’s request. ATEX Silicone Coated Glass Fibre from Valmeira was chosen for the canopy itself. The fabric is woven and coated in Sherbourne, Dorset, and holds a 15-year warranty.

The project was completed working alongside Devereux Architects Ltd and main contractor's ISG, both specialists at what they do with award winning results.

Key Facts

Location: United Kingdom
Structures: Tension Structure
Industry: Healthcare
Roof Forms: Hypar
Materials: Silicone Coated Glass Fibre

Download PDF
Our Cookies

This site uses cookies to store information on your device. Some of these cookies are essential to make our site work and others help us to improve by giving us some insight into how the site is being used.

Read more about essential and non-essential cookies in our Privacy Policy